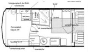
VW T5 KR
VW T5 KR
KLEDO Maßeinrichtungen
Wir gestalten individuelle Freizeitmobile nach Ihren Vorstellungen und Wünschen. Reisemobile, Kastenwägen oder Aufbauten, mit Ihren Ideen und unserem “Know how” planen, konzipieren und bauen wir Ihr Traumfahrzeug. Durch jahrelange Erfahrung sind wir die Spezialisten im Bereich Ausbau, um sich einen eigenen Eindruck zu verschaffen, klicken Sie einfach auf die Buttons und überzeugen Sie sich selbst. KLEDO macht es möglich.
Styrian Star Mercedes Sprinter
 
© Kledo Graz 
Sprinterbau Bilder Fiat Ducato X250 Sprinter Kabine Artego Kabine Iveco Kabine T5 T6 Baufortschritte Bühne VW T5 KR City Star VW T5 KR V1 mit Schlafdach MB Styrian Star 6m Gewerbefahrzeuge VW T5 KR City Star 2 Sprinter mit Schlafdach Sprinter Sesam VW T5 LR Hochdach VW T6 KR 4x4 Adventure Campingplätze